«Voltar

Venda Apartamento T2

Detalhes do imóvel

Descrição

Empreendimento BARROKA by Vila Sá Um Novo Marco Habitacional em Aveiro

No coração do Cais de São Roque, em Aveiro, surge o BARROKA by Vila Sá, um empreendimento pensado para quem valoriza qualidade de vida, conforto e proximidade à natureza. Com uma localização estratégica e vistas deslumbrantes sobre a Ria de Aveiro, este projeto integra harmoniosamente o ambiente urbano com a serenidade das paisagens envolventes.

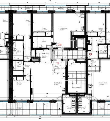
O apartamento (fração) 2L, situado no quarto piso, destaca-se pelas suas duas frentes, proporcionando uma excelente entrada de luz natural ao longo do dia. Com orientações a Nordeste e Sudoeste, oferece uma agradável exposição solar e espaços exteriores funcionais.

Frente Nordeste: Inclui uma varanda de 2.33 m², que comunica diretamente com a suíte, proporcionando uma extensão natural dos espaços interiores e vistas agradáveis.
Frente Sudoeste: Apresenta uma generosa varanda de 15,48 m², que se conecta à cozinha/sala em open space, e ao segundio quarto, ideal para refeições ao ar livre e momentos de convívio. A varanda está estrategicamente posicionada junto ao arrumo de 4.15 m² e à área da cozinha, garantindo praticidade no dia-a-dia.

Este T2 foi projetado para oferecer conforto, funcionalidade e uma forte ligação ao exterior, tornando-se a escolha ideal para quem procura um estilo de vida moderno e tranquilo.

Espaços Funcionais e Design Contemporâneo

Este apartamento destaca-se pela funcionalidade dos seus espaços e pela atenção ao detalhe em cada elemento de design.
Cozinha e Sala em Open Space: Um espaço fluido, pensado para acolher momentos de convívio em família ou entre amigos. A cozinha, equipada com eletrodomésticos modernos, inclui uma prática lavandaria e uma ilha central que combina utilidade com elegância.
Quartos com Roupeiros Embutidos: Áreas generosas, pensadas para o bem-estar de todos os membros da família.
Varandas: Espaços amplos e iluminados, perfeitos para contemplar as paisagens da Ria de Aveiro ou relaxar ao final do dia.

Infraestruturas Exclusivas Mais do que uma Casa, um Estilo de Vida

Inserido num condomínio fechado, o empreendimento oferece:
Piscina comum, ideal para momentos de lazer e descontração.
Ginásio, proporcionando a conveniência de manter uma rotina ativa sem sair de casa.
Zona de lazer, um espaço convidativo para convívios ou momentos de pausa.

Materiais e Acabamentos de Excelência Cada detalhe foi cuidadosamente selecionado para garantir robustez, funcionalidade e estética.
Estrutura sólida: Betão armado para máxima durabilidade.
Isolamento térmico e acústico: Paredes exteriores com revestimento ETICS (sistema Capoto).
Iluminação e climatização: Fitas LED embutidas, ar condicionado mural e bomba de calor Daikin.
Caixilharia premium: Alumínio com corte térmico, complementado por blackouts elétricos Luxaflex.
Cozinha e sanitários: Equipamentos de marcas de referência (Sanindusa, Grohe) e mobiliário elegante.

Uma Localização que Combina o Melhor de Dois Mundos O BARROKA by Vila Sá está integrado numa das zonas mais promissoras de Aveiro, a poucos passos de escolas, comércio, serviços e transportes. Com rápidos acessos às principais vias rodoviárias e às praias da região, este é o lugar perfeito para quem procura uma ligação fluida entre a vida urbana e o contacto com a natureza.

Por Que Escolher o BARROKA by Vila Sá?
Mais do que uma casa, este empreendimento oferece uma oportunidade de investir em qualidade de vida. As amplas varandas, os acabamentos superiores e a integração perfeita com o ambiente envolvente fazem do BARROKA by Vila Sá uma escolha criteriosa para quem procura um lar que reflete sofisticação e funcionalidade.

Agende a sua visita com a DS Aveiro Vera Cruz, e descubra o futuro da habitação em Aveiro.

Esta fração (Piso 4 Fração 2L) faz parte de um conjunto de 46 frações a serem construídas no âmbito do processo n.º 1/2020/94 da Câmara Municipal de Aveiro, com Alvará de Licenciamento de Obras e Construção n.º 240/22. A data prevista para a sua conclusão é Setembro de 2024.

Marcar visita à propriedade
Mais informação

(Todos os campos são de preenchimento obrigatório)

Autorizo que os dados inseridos neste formulário apenas sejam utilizados para o fim a que o mesmo se destina.