«Voltar

Venda Outros

Detalhes do imóvel

Descrição

Terreno com Projeto Aprovado - Oportunidade de Investimento na Venteira, Amadora

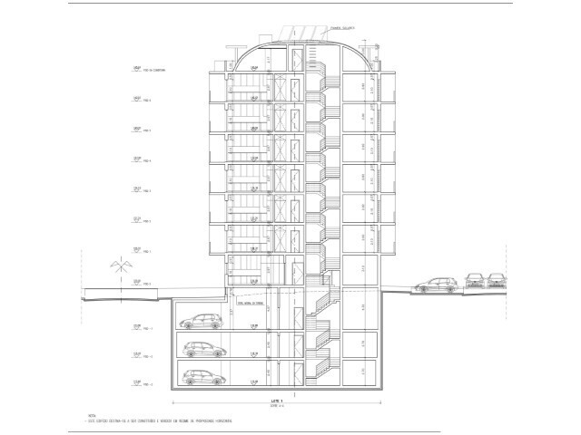
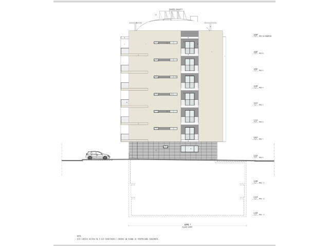
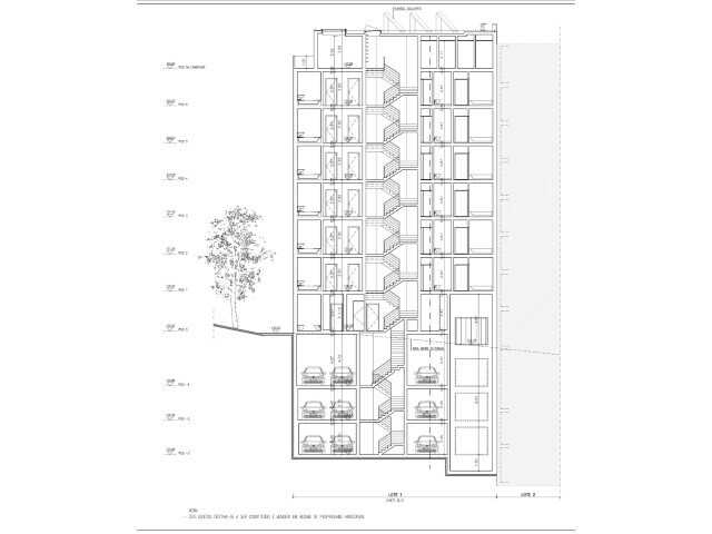
Terreno com 320 m², com projeto aprovado e licenças a pagamento para construção de um edifício com 1.679 m² acima do solo, incluindo garagem e elevador. Localizado em zona de elevada procura e forte potencial de valorização futura.

Detalhes do Projeto:
Prédio com 6 pisos acima do solo, composto por:

14 apartamentos (2 T1 e 12 T2)

3 pisos abaixo do solo destinados a estacionamento

Este lote encontra-se junto a outros dois terrenos (Ref. 13592 e Ref. 13593), todos com projeto aprovado e licenças a pagamento, podendo ser vendidos em conjunto - uma excelente oportunidade para investidores que pretendem desenvolver um projeto de maior dimensão.

Localização Estratégica:
Inserido na freguesia da Venteira, concelho da Amadora, numa zona em rápida expansão urbana, com diversos empreendimentos de construção nova.

Proximidades:

A 10 minutos a pé da Estação de Metro da Reboleira, Estádio José Gomes e Bingo da Amadora

A 5 minutos de carro da Escola Secundária da Amadora, Estações CP da Amadora e Queluz/Belas

A apenas 15 minutos do Aeroporto de Lisboa

Ideal para promotores imobiliários que procuram um investimento sólido numa localização estratégica, com projeto pronto a iniciar.

Marcar visita à propriedade
Mais informação

(Todos os campos são de preenchimento obrigatório)

Autorizo que os dados inseridos neste formulário apenas sejam utilizados para o fim a que o mesmo se destina.