«Voltar

Venda Terreno Rústico T0

Detalhes do imóvel

Descrição

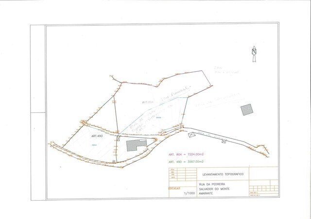
Terreno para construção com 7224 m2 com índice de construção Nivel II, confirmado no atual PDM em vigor pela Cãmara Municipal de Amarante; Excelente exposição solar com vistas desafogadas para os campos e para a serra;
Situado a 8 min do centro da cidade de Amarante e a 10 minutos da cidade do Marco de Canaveses, ficando igualmente perto da entrada para autoestrada A4 e para o IP4; Inserido numa zona urbana mas ao mesmo tempo um local sossegado onde pode usufruir de um contacto direto com a natureza.

Marcar visita à propriedade
Mais informação

(Todos os campos são de preenchimento obrigatório)

Autorizo que os dados inseridos neste formulário apenas sejam utilizados para o fim a que o mesmo se destina.